50ft x 30ft Bank Layout Plan Design | AutoCAD DWG File
Description
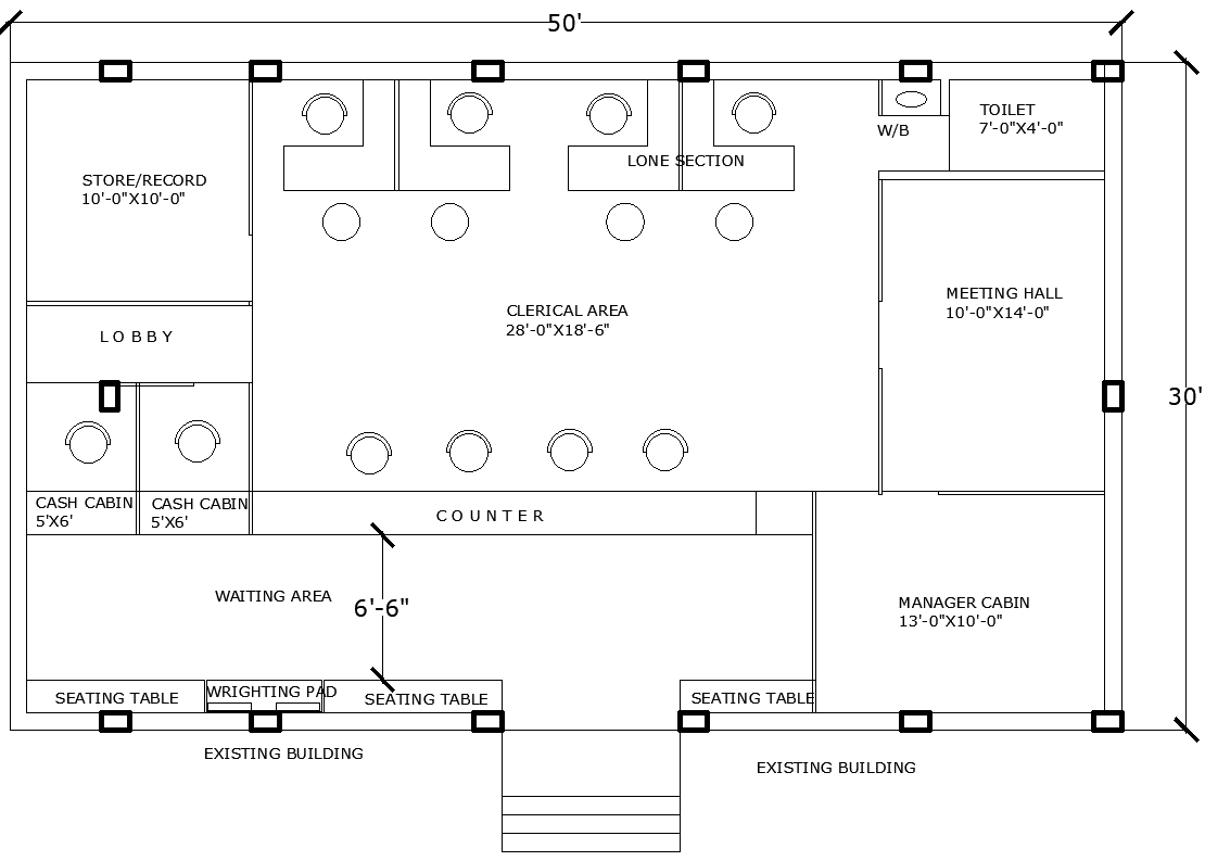
This 50ft x 30ft bank layout plan offers a detailed design for a functional and customer-friendly banking environment. The AutoCAD DWG file includes a manager cabin, customer counter, seating table, waiting area, and cash cabin, along with a well-planned clerical area and loan section. The layout also incorporates a lobby, store, record room for documentation, and restroom facilities (with w/b) to ensure a complete banking setup. Designed to optimize space and workflow, this plan creates an efficient, organized atmosphere ideal for both customers and staff. Download the AutoCAD file today to explore the layout and start planning your bank’s interior design with precision and professionalism.

Uploaded by:
Eiz
Luna

